¡Descubre tu nuevo hogar en la mejor zoba de Castellón!
Vivienda familiar, moderna y luminosa en PAU Gumbau – Ciudad de la Justicia
Dirección: Bulevar Vicente Blasco Ibáñez, Castellón
Bienvenido a este exclusivo piso, en una ubicación privilegiada de Castellón, ideal para quienes buscan calidad de vida y máximo confort.
Ubicación inmejorable:
Vive rodeado de todo lo que necesitas: Bonito Boulevard para inolvidables paseos en familia, cafeterías, supermercados, farmacias, colegios y centros deportivos. Fácil acceso al centro y salidas de Castellón, y la playa a pocos minutos. Entorno tranquilo, seguro y con todos los servicios a pasos de casa.
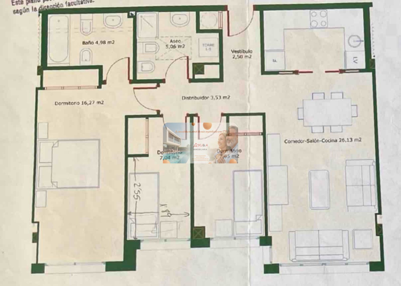
Espacio: 95 m² de confort
Distribución: 3 dormitorios con armarios empotrados
Baños: 2 (baño principal muy amplio y luminoso con ventana
Estado: Perfecto para entrar a vivir, con todas las estancias exteriores
Planta: Primera, en edificio con ascensor
Orientación: Triple orientación – noreste, sureste y suroeste – luz natural durante todo el día
Año de construcción: 2002
Características excepcionales:
Amplio salón-comedor con acceso directo al balcón para relajarte al aire libre
Cocina independiente equipada con galería funcional
Elegante suelo de tarima en todas las estancias
Climatización por radiadores de agua, caldera de gas y aire acondicionado en el salón
Dormitorios equipados con ventiladores de techo para máximo confort
Grandes ventanales de aluminio con doble acristalamiento, aislamiento y eficiencia energética
Incluye:
Zonas comunes con zona infantil
Plaza de garaje espaciosa (de fácil acceso)
Trastero privado de 6 m² para almacenamiento adicional
Opción de adquirir una segunda plaza de garaje por solo 12.000 €
Patio comunitario ideal para mascotas y actividades familiares
Suministros ya activos: listo para mudarse
Gastos y comunidad:
Comunidad: 59 €/mes
IBI: 470 €/año
Nota:
Impuestos y honorarios inmobiliarios no incluidos en el precio.
El anuncio puede estar sujeto a cambios o errores.
¡No dejes pasar esta oportunidad! Contáctanos para más información y para concertar una visita, te enamorarás en cuanto entres.